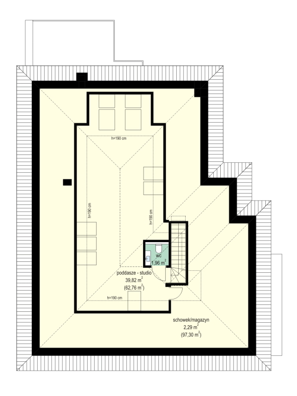
Rezydencja leśna to piętrowy, duży, komfortowy dom, przeznaczony dla rodziny 4-6cioosobowej. Budynek jest nowoczesny, ma zwartą bryłę, oraz funkcjonalne wnętrze. Został zaprojektowany w stylu piętrowej miejskiej willi. Główna bryła przekryta jest czterospadowymi dachami - elewacja frontowa jest szersza i zwęża się w kierunku ogrodu, dzięki czemu dom ma dwa oblicza: masywny reprezentacyjny przód i bardziej rozczłonkowany tył z załamaniami i dobudówkami, utrzymujący ludzką skalę. Elewacje zostały podzielone na poziome pasy - uzyskano w ten sposób lżejszą i ciekawszą sylwetkę budynku. Duże przeszklenia, narożne okna, wcięcia i wystające wykusze ozdabiają dom i nadają mu nowoczesny dynamiczny charakter. Wnętrze domu jest bardzo komfortowe i zawiera wszystko czego właściciele mogliby sobie zamarzyć. Na parterze szerokim przeszklonym wejściem z przedsionka wchodzimy do jednoprzestrzennego salonu połączonego z jadalnią i holem. Pokój dzienny łączy się pięknymi przeszkleniami z tarasem i ogrodem. Częściowo otwarta na jadalnię kuchnia z wyspą i spiżarnią usytuowana jest od frontu - z dużym oknem na wejście do domu. Na parterze znajdują się też : dwustanowiskowy garaż, kotłownia, oraz gabinet. Taras od strony ogrodu przykryty jest częściowo zadaszeniem. Piętro zawiera cztery duże sypialnie, w tym wygodny apartament rodziców, z własną łazienką, garderobą i tarasem ogrodowym. Dodatkowo są tutaj dwie łazienki i pomieszczenie pralni. Na samej górze domu zlokalizowany jest strych, który można wykorzystać na poddasze użytkowe i zrobić tam np. pomieszczenie rekreacyjne. Dom zaprojektowano z wykorzystaniem energooszczędnym materiałów i technologii, dzięki czemu, mimo niemałej powierzchni, jego koszty utrzymania nie będą duże.
- Fundamenty - betonowe ławy i ściany fundamentowe z bloczków betonowych
- Ściany zewnętrzne - ściany murowane - pustaki porotherm 25 + styropian + tynk cienkowarstwowy
- Strop - monolityczne wylewane żelbetowe
- Elewacje - tynk cienkowarstwowy na styropianie
- Pokrycie dachu - dachówka ceramiczna
Charakterystyka Energetyczna
Dla domu standardowego z wentylacją grawitacyjną:
- Ep - 90,2 kWh/(m2)
- Ek - 72,6 kWh/(m2 rok)
- EUco - 64,33 kWh/(m2 rok)
Dla budynku z wentylacją mechaniczną i rekuperacją:
- Ep - 74,00 kWh/(m2)
- EUco - 33,20 kWh/(m2 rok)
Istnieje możliwość dostosowania projektu do standardu NF40
(prosimy o kontakt z pracownią)






